








Opis nieruchomości
KUPUJĄCY NIE PŁACI PROWIZJI !!!
Wyjątkowe Mieszkanie na Dębowej – Gotowe do Zamieszkania!
Zapraszamy do zapoznania się z ofertą sprzedaży słonecznego, 3-pokojowego mieszkania o powierzchni użytkowej 57.04 m² (całkowita powierzchnia 65.95 m² wraz z przynależną piwnicą 8.91 m²).
Mieszkanie znajduje się w Katowicach, przy ulicy Dębowej w cenionej dzielnicy Dąb.
Największe Atuty Mieszkania:
• Doskonała Lokalizacja: Mieszkanie położone jest w znakomitej lokalizacji, rejonu Dąb, która przechodzi od kilku lat intensywną rewitalizację, zaledwie 5 minut od Silesia City Center, Legendii, Zoo i majestatycznego Parku Chorzowskiego. W pobliżu znajdują się również przystanki autobusowe i tramwajowe, zapewniając szybki dostęp do całej aglomeracji.
• Miejsca Parkingowe: Dla mieszkańców dostępne są miejsca parkingowe na zamykanym podwórku z bramą otwieraną na pilota, co jest nieocenionym udogodnieniem w tej lokalizacji.
• Pełne Wyposażenie w cenie: Oferta obejmuje całe umeblowanie pokoi, sprzęt ADG (pralka, lodówka, mikrofalówka, TV), kredens – wszystko tak, jak widać na zdjęciach (z wyjątkiem kanapy). Mieszkanie jest gotowe do odświeżenia, ale jednocześnie nadaje się do natychmiastowego zamieszkania. Łazienka jest używana, ale sugerowany jest remont.
• Czysty Stan Prawny: Mieszkanie jest wolne od jakichkolwiek obciążeń, praw i roszczeń osób trzecich. Nikt nie jest w nim zameldowany, a hipoteka jest czysta.
• Potencjał Inwestycyjny: Idealna lokalizacja czyni je atrakcyjną opcją dla inwestorów poszukujących stabilnego źródła dochodu.
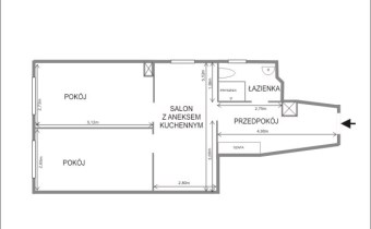
Układ Mieszkania:
Mieszkanie składa się z 2 pokoi, salonu/jadalni z aneksem kuchennym, przedpokoju oraz łazienki z WC.
POLECAM I ZAPRASZAM NA PREZENTACJĘ
Agent prowadzący: Marzena Huhulska
Sieć Biur Nieruchomości to licencjonowane biuro pośrednictwa w obrocie nieruchomościami z prawie 30-letnim doświadczeniem. Zapewniamy pełną obsługę transakcji. W trosce o komfort i bezpieczeństwo naszych klientów zajmujemy się szczegółową weryfikacją dokumentów, pomagamy w uzyskaniu kredytu, prowadzimy negocjacje dotyczące ceny i warunków transakcji. Współpracujemy z notariuszami, którzy naszym klientom oferują korzystne rabaty. Dodatkowo klienci naszej firmy mogą uzyskać atrakcyjne zniżki na zakupy w sieci sklepów Leroy Merlin.
Przedstawione informacje nie stanowią oferty handlowej w rozumieniu art. 66 §1 kodeksu cywilnego oraz innych przepisów prawnych.
Pośrednik odpowiedzialny: Dariusz Klimkowicz licencja zawodowa nr 1920.
Nota prawna
Opis oferty zawarty na stronie internetowej sporządzany jest na podstawie oględzin nieruchomości oraz informacji uzyskanych od właściciela, może podlegać aktualizacji i nie stanowi oferty określonej w art. 66 i następnych K.C.Szczegóły




